
Disadvantages
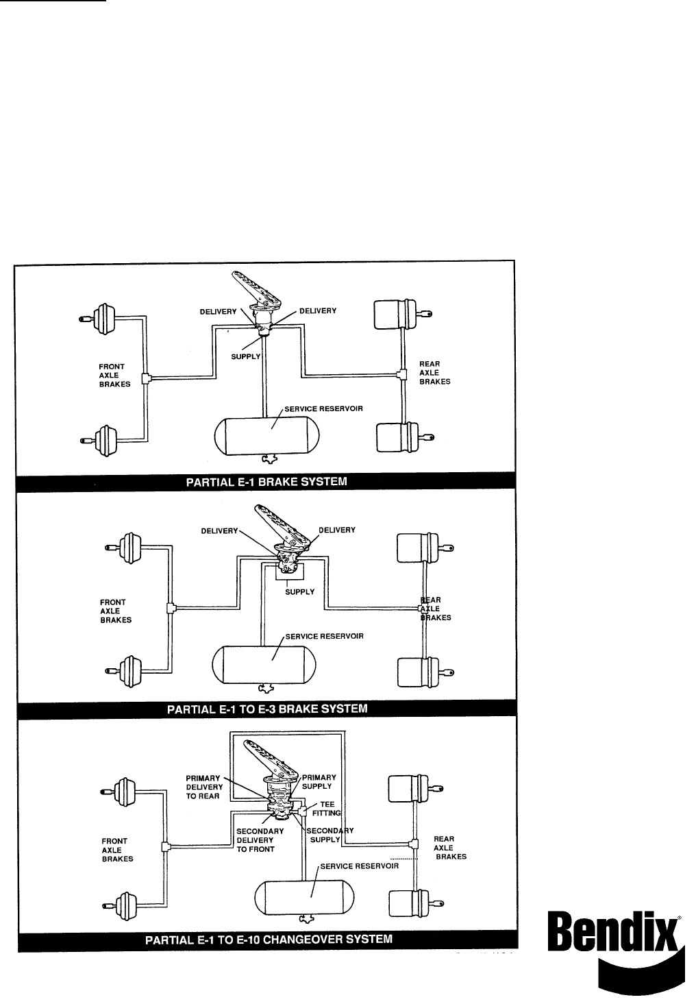
Since the E-10 is a dual brake valve some piping changes will be required. The single
air supply line which was connected to the E-1 must be branched into two lines and
connected to the separate primary and secondary supply ports of the E-10. In addition,
the delivery line leading to the coach rear axle brakes MUST BE CONNECTED TO THE
PRIMARY DELIVERY PORT OF THE E-10. The delivery line leading to the coach front
brakes should be connected to the secondary delivery ports on the E-10. The air
delivery connections specified are required due to the inherent 4 psi differential in
delivery pressure between the primary and secondary circuits of a dual brake valve. The
E-10 is approximately 2 inches longer than the E-1, and is no larger in diameter. There
must be adequate clearance below the existing E-1 in order to install the E-10. The
E-10 is equipped with four 3/8” PT delivery ports and four 3/8” PT supply ports (two
supply and delivery ports for each circuit). The E-1 is equipped with a single ½” PT
supply and four ½” PT delivery ports.
Komentarze do niniejszej Instrukcji