
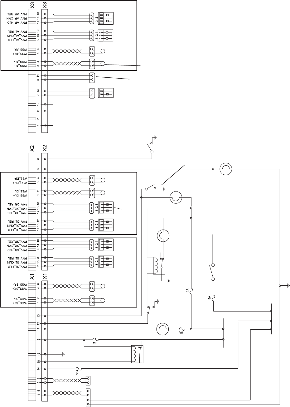
39
FIGURA 20 - ALAMBRADO ESQUEMATICO DE CHASIS PREMIUM (6S/6M)
Localización de averías: Alambrado esquemático de chasis premium (6S/6M)
*
*
*
* * *
* Válvulas moduladoras de presión
Conector Seguro de girar Packard
Común (CMN) Patilla 2 Patilla B
Retención (HLD) Patilla 3 Patilla C
Liberación (REL) Patilla 1 Patilla A
LAMPARA DEL ATC/
INTERRUPTOR
DE CARRETERA
DESTAPADA(ORS)
J1587_B
J1587_A
J1939_BAJO
J1939_ALTO
BATERIA
RETARDADOR
TIERRA
IGNICION
REMOLQUE ABS
WL
ABS WL
EJE MOTRIZ EJE DIRECCIONAL
SENSOR DE
VELOCIDAD
DE LA
RUEDA- EJE
MOTRIZ
DERECHO
SENSOR DE
VELOCIDAD
DE LA
RUEDA- EJE
MOTRIZ
IZQUIERDO
EJE MOTRIZ
DERECHO
VALVULA
MODULADORA
DE PRESION
EJE MOTRIZ
IZQUIERDO
VALVULA
MODULADORA
DE PRESION
EJE
DIRECCIONAL
DERECHO
VALVULA
MODULADORA
DE
PRESION
EJE
DIRECCIONAL
IZQUIERDO
VALVULA
MODULADORA
DE
PRESION
SENSOR DE
VELOCIDAD DE LA
RUEDA- EJE
DIRECCIONAL
IZQUIERDO
(OPCIONAL)
RELE
RETARDADOR
LAMPARA
INDICADORA
DE
REMOLQUE
ABS
LAMPARA
INDICADORA
ABS
+12V IGNICION
+12V BATERIA
SENSOR DE
VELOCIDAD
DE LA
RUEDA EJE
MOTRIZ
ADICIONAL
DERECHO
VALVULA
MODULADORA
DE
PRESION DEL
EJE MOTRIZ
ADICIONAL
DERECHO
EJE ADICIONAL
CERROJO
DIFERENCIALSOL
VALVULA DE CONTROL DE
TRACCION-EJE MOTRIZ
ENTRADA/ SALIDA 2
ENTRADA/ SALIDA 3
DIFERENCIAL
DIFERENCIAL-COMUN
LAMPARA
INDICADORA
ABS
LAMPARA DE
PARADA
INTERRUPTOR
DE LAMPARA
DE
PARADA(SLS)
NO USADO
VALVULA
MODULADORA
DE
PRESION DEL
EJE MOTRIZ
ADICIONAL
IZQUIERDO
VALVULA DE
CONTROL DE
TRACCION
(TCV)
INTERRUPTOR
DE CARRETERA
ADESTAPADA(ORS)
DEL ABS
LAMPARA
DEL ATC
INTERRUPTOR
DE CARRETERA
DESTAPADA(ORS)
DEL ATC
ABS WL
RELE
ENTRADA/ SALIDA
VALVULA DE CONTROL DE
TRACCION-EJE MOTRIZ-COMUN
SENSOR DE
VELOCIDAD
DE LA
RUEDA- EJE
MOTRIZ
IZQUIERDO
DE LA
RUEDA-
EJE
MOTRIZ
DERECHO
Komentarze do niniejszej Instrukcji