
3
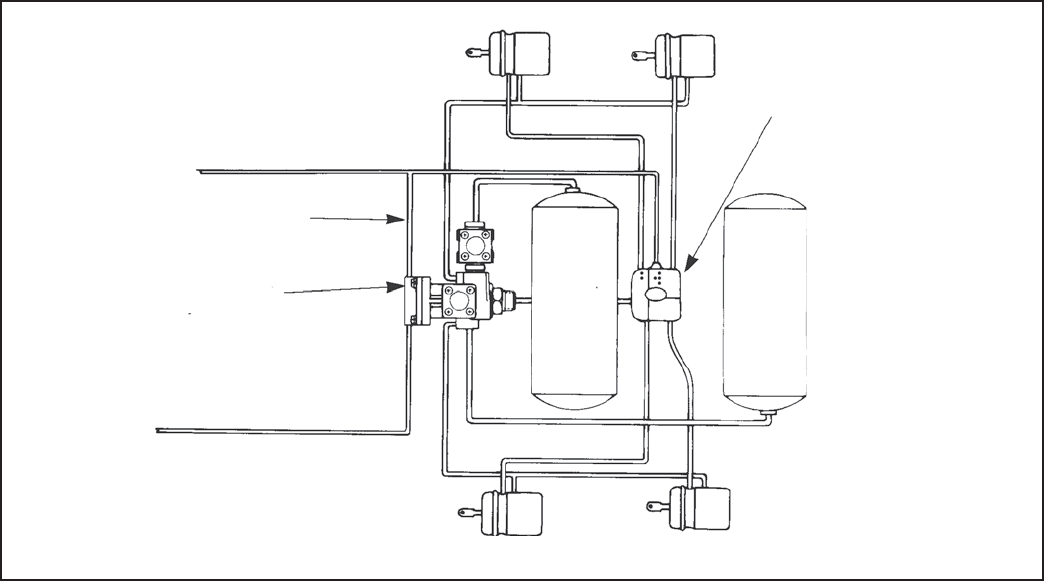
FIGURA 3 - TUBERÍA ANTIMEZCLA DE FUERZAS PARA LA VÁLVULA SR-4
™
DE BENDIX
®
LÍNEA DE SUMINISTRO DEL
REMOLQUE
DEPÓSITO
N.º 2
VÁLVULA
DE RELÉ
R-12
™
LÍNEA DE SERVICIO DEL
REMOLQUE
CONEXIÓN ANTIMEZCLA DE
FUERZAS
VÁLVULA DE
RETENCIÓN SIMPLE
DEPÓSITO
N.º 1
OPCIÓN ANTIMEZCLA DE FUERZAS
Bajo ciertas condiciones, cuando la válvula de protección del
tractor entra en el modo de emergencia durante una aplicación
de servicio, la línea de suministro del remolque se ventilará pero
puede quedar atrapado aire en la línea de servicio, creando
una aplicación de servicio además de una aplicación de resorte
completa. Esto creo una situación de freno de estacionamiento
falso y añade carga adicional a los componentes de los frenos de
base. Esto se puede evitar añadiendo tubería opcional para evitar
mezclar las fuerzas de frenado que aparece en las fi guras 2 y 3.
MANTENIMIENTO PREVENTIVO
Importante: revise la póliza de garantía de Bendix antes de
realizar cualquier procedimiento de mantenimiento invasivo. Se
puede anular la garantía si se realiza mantenimiento invasivo
durante el período de la garantía.
No hay dos vehículos que funcionen bajo las mismas condiciones
y, por ende, los intervalos de mantenimiento variarán. La
experiencia debe servir como guía vital para determinar el
mejor intervalo de mantenimiento para los componentes del
sistema de aire. Como mínimo, la válvula de SR-4
™
de Bendix
®
se debe inspeccionar cada 6 meses o 1500 horas de uso, lo
que suceda primero, para obtener el funcionamiento adecuado.
Si la válvula SR-4
™
no cumple los requisitos de las pruebas de
funcionamiento estipulados en este documento, puede requerirse
más investigación y servicio de la válvula.
PRUEBAS DE OPERACIÓN Y FUGAS
Revise el manómetro en el tablero del tractor con un manómetro
de prueba que sea confi able antes de realizar estas pruebas.
Conecte las líneas de aire del tractor al remolque en el que se
probará la válvula de freno por resorte SR-4
™
del remolque.
Bloquee todas las ruedas o sostenga ambos vehículos por un
medio diferente al de los frenos de aire.
1. Instale dos manómetros de prueba separados o un
manómetro de prueba dual con una línea al depósito N.º 1 y
la otra línea al depósito N.º 2. Acumule la presión del sistema
del tractor o remolque por completo colocando la válvula de
suministro del remolque en la posición de carga y la válvula de
control de estacionamiento en la posición “frenos liberados”.
Nota: cuando la presión del sistema llega a aproximadamente
60 psi, el depósito N.º 2 y los frenos por resorte deberían
acumular aproximadamente 413,7 kPa (60 psi) de
presión antes de que el depósito N.º 1 comience a cargar
(consulte la fi gura 3). Cuando se alcance la presión
completa del sistema y los frenos por resorte se liberen
por completo, es posible tener una lectura de presión
un poco más baja en los depósitos de servicio de lo
que aparecen en el manómetro en el tablero. Aplique
una solución jabonosa en el puerto de descarga y la
ventilación. Se permite el escape de una burbuja de
25 mm (1 pulg.) en 5 segundos.
2. Ponga la válvula de suministro del remolque en la posición de
escape; se debe aplicar los frenos por resorte. Desconecte
la línea de suministro del remolque y coloque jabón en el
acople de la manguera para verifi car si hay fugas. Se permite
la formación de una burbuja de 25 mm (1 pulg.) en menos
de 5 segundos.
3. Vuelva a conectar el acople de la manguera de suministro
del remolque y vuelva a cargar el sistema del remolque. Los
frenos por resorte deben liberarse. Apague el motor, dejando
el encendido activado y abra la llave de purga en el depósito
N.º 1. El sistema de aire del tractor debe descargarse hasta
Komentarze do niniejszej Instrukcji